HAUS W, Potsdam
 
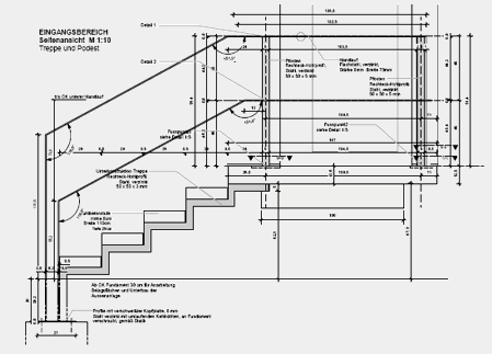
Eine Besonderheit stellt die „schwebende“ Eingangstreppe mit zwei sich nicht berührenden parallel verlaufenden Stahlbändern als Handläufen dar.
 
 
raumfeld,architekt,dresden,wil,treppengeländer,konstruktion